Interieur hoekwoning
Zicht van entreehal richting woonkamer, keuken en balkon
LOCATIE: Brussel, België
OPDRACHTGEVER: TU Delft
STUDIO: Interior
DATA: 2016-2017
SAMENWERKING: -
EXTRA INFO: De hoekwoning heeft een sterk karakter binnen een stedelijk netwerk, ze zijn vaak hoger en zichtbaarder aanwezig dan hun buren. De hoekwoning kan de uitstraling van de publieke ruimte bepalen. Het project bevat twee type appartementen binnen een stedelijke context, hierbij spelen de royale entreehal, de hoekkamer en het terras een belangrijke rol binnen het ontwerp.
Zicht van entreehal richting woonkamer, keuken en balkon
Hoekoning hoger en dominant aanwezig in het straatbeeld
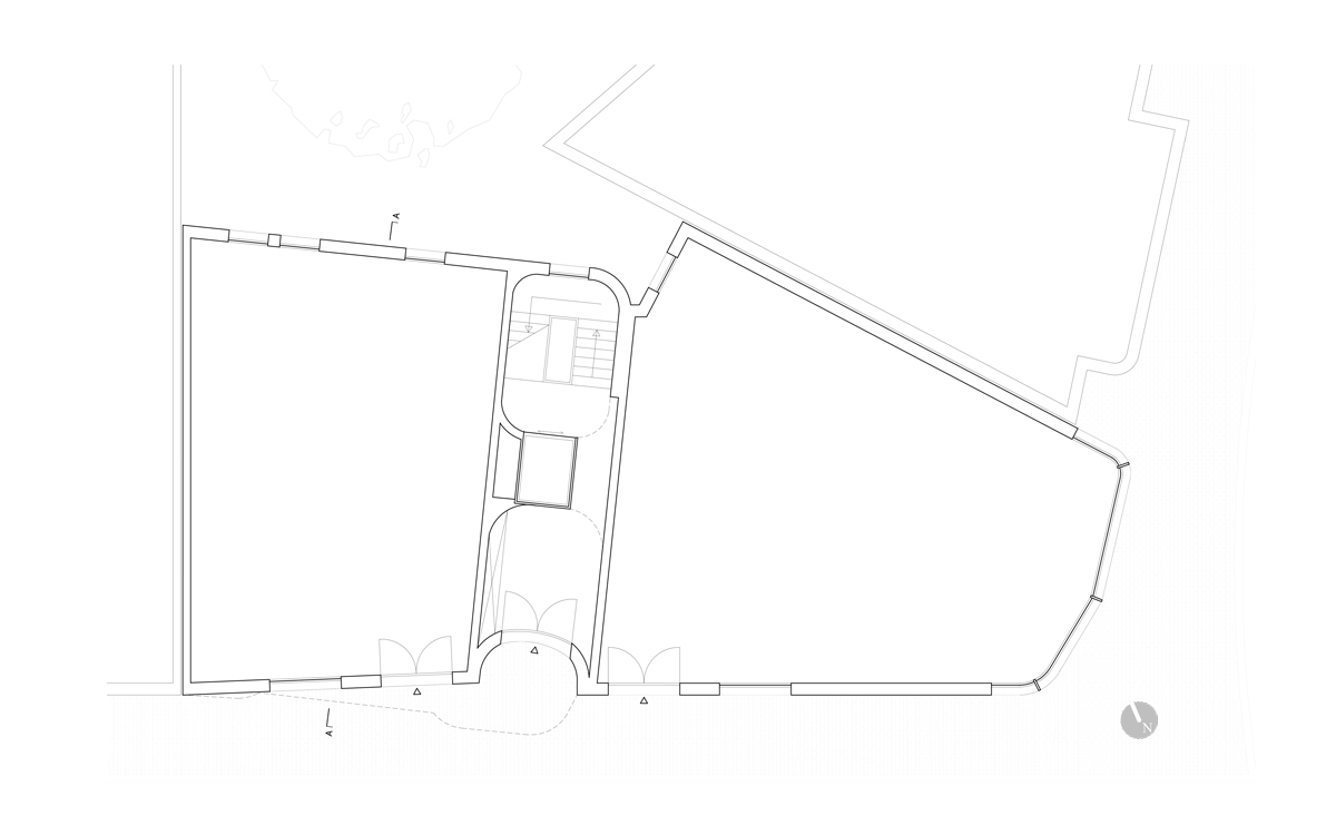
Entree hal met twee vrij in te richten ruimten
Elke verdieping bevat twee appartementen
Gezamelijke ruimte
Entree met buitenruimten van de verschillende appartementen
Ronde hoek met zicht op het aangrenzende park
Ronde hoek met zicht op het aangrenzende park
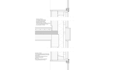
Groen natuursteen dat naar binnen wordt doorgezet
Zowel organische als rechte wanden vormen de plattegrond
Identieke woningen bovenelkaar gestapeld
Houten constructie afgewerkt met natuursteen